кенокен
Мансарда 100 кв.м пос. Горки
Год завершения проекта: 2020
Стоимость проекта: 70 000 - 200 000 руб.
Адрес: пос. Горки ленинградская область
Мансарда: 100 кв.м
Высота потолков: 2.77 м
Проект: 2019 г.

Информация об объекте:
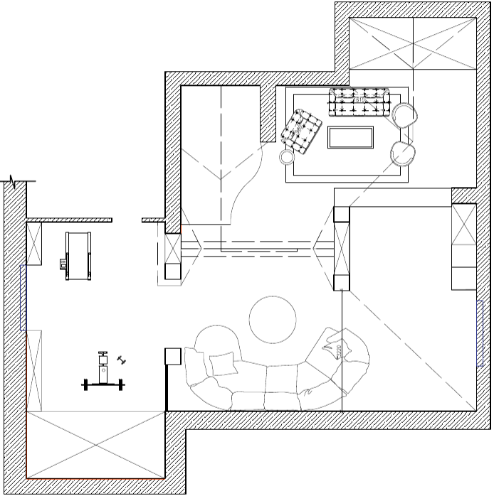
Загородный дом находится в Ленинградской области, в коттеджном поселке. Этот проект - наш подарок-сюрприз одному из членов семьи, которая проживает в трехэтажном доме. Тех задание было коротким-ничего не переделывать, ведь вся отделка уже была сделана.

Дизайн я придумала сразу, один раз увидев помещение. Этот интерьер для молодого доктора, который планирует проводить на мансардном этаже время с друзьями. Большая коллекция алкоголя, игрушек из киндер-сюрпризов 90х годов вдохновили нас. И мы разработали выкатные системы хранения для бутылок - они расположены в зонах ската крыши, где не встать в полный рост. Выкатывая витрину с коллекцией, хозяин получает доступ ко всему содержимому.

Так же предусмотрены тумбы-витрины, и мини бар для приготовления напитков, кофе. Есть холодильник для вина и отдельно для закусок.

В центре- в основной части мансарды установили большой мягкий диван, и напротив экран для просмотра фильмов в большой и веселой компании. Места хватит для всех.
Конечно аквариум и камин - неотъемлемые части этой необыкновенно теплой и уютной мансарды.
This site was made on Tilda — a website builder that helps to create a website without any code
Create a website